Противопожарные доводчики 3S с малым рычагом имеют сертификат пожарной безопасности согласно требованиям ГОСТ Р 56177-2014, п. 5.1.12, Приложение Б «Требования к доводчикам, предназначенным для использования в конструкциях противопожарных/противодымных дверей» и рекомендованы для установки на противопожарные/противодымные двери. На работу механизма действует пятилетняя гарантия производителя.
Благодаря своим характеристикам Доводчик дверной 3S прослужит Вам долгие годы.Технические характеристики:
• Класс доводчика: EN3-4
• Для противопожарных дверей
• Устанавливается на металлические противопожарные двери
• Материал: Силумин
• Вес двери: 50-80 кг
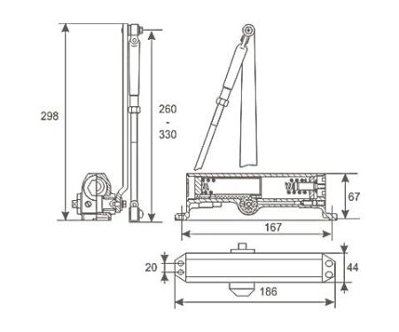
• Габариты(мм): 186х44х298
• Виды регулировок: Скорость закрытия/Скорость прихлопа
• Подходит для установки на улице
• Температурный режим: -30 +35
Дверные доводчики «НОРА-М» за период многолетнего присутствия на российском рынке приобрели отличную репутацию благодаря своей надежности! Предназначены для дверей весом от 25 до 160 кг. Для установки на межкомнатные и входные двери, в том числе противопожарные.
Дверные доводчики "НОРА-М" сертифицированы согласно ГОСТ 5091-78, ГОСТ 56177-2014, и соответствуют европейским стандартам качества EN1154. Сконструированы по принципу максимальной безопасности и работоспособности, и изготовлены с учетом особенности эксплуатации в российских условиях.
Единственные доводчики на российском рынке, имеющие сертификат соответствия требованиям пожарной безопасности согласно ГОСТ Р56177-2014.
Наработка по ГОСТ - не менее 500 000, наработка в условиях испытательной лаборатории - не менее 900 000 циклов открывания/закрывания.
Доводчики для дверей весом от 50 кг имеют сертификат ГОСТ на соответствие требованиям пожарной безопасности и рекомендованы для установки на противопожарные двери. Производятся при строгом контроле качества в соответствии с ГОСТ и европейскими стандартами качества. Надежность работы доводчиков «НОРА-М» подтверждена гарантией в 5 лет.
Бренд доводчика | Нора-М |
Вид товара | Доводчик |
Вид доводчика | Накладной |
Исполнение доводчика | Уличное (ручная регулировка) |
Стандарт EN1154 | EN3 - EN4 |
Макс. вес двери, кг | 80 |
Макс. ширина двери, мм | 1100 |
Регулировка скорости закрывания клапанами | Есть |
Габариты | 186х44х298 мм |
Рабочая температура | от -30°C до +35°C |
Цвет | Белый, серый, серебро, бронза, золото, коричневый, черный |
Противопожарный | Да |
Гарантия | 5 лет |
Страна производства | Россия |
Функция «Быстрый заказ» позволяет покупателю не проходить всю процедуру оформления заказа самостоятельно. Вы заполняете форму, и через короткое время вам перезвонит менеджер магазина. Он уточнит все условия заказа, ответит на вопросы, касающиеся качества товара, его особенностей. А также подскажет о вариантах оплаты и доставки.
По результатам звонка, пользователь либо, получив уточнения, самостоятельно оформляет заказ, укомплектовав его необходимыми позициями, либо соглашается на оформление в том виде, в котором есть сейчас. Получает подтверждение на почту или на мобильный телефон и ждёт доставки.
Оформление заказа в стандартном режиме
Если вы уверены в выборе, то можете самостоятельно оформить заказ, заполнив по этапам всю форму.
Заполнение адреса
Выберите из списка название вашего региона и населённого пункта. Если вы не нашли свой населённый пункт в списке, выберите значение «Другое местоположение» и впишите название своего населённого пункта в графу «Город». Введите правильный индекс.
Доставка
В зависимости от места жительства вам предложат варианты доставки. Выберите любой удобный способ. Подробнее об условиях доставки читайте в разделе «Доставка».
Оплата
Выберите оптимальный способ оплаты. Подробнее о всех вариантах читайте в разделе «Оплата»
Покупатель
Введите данные о себе: ФИО, адрес доставки, номер телефона. В поле «Комментарии к заказу» введите сведения, которые могут пригодиться курьеру, например: подъезды в доме считаются справа налево.
Оформление заказа
Проверьте правильность ввода информации: позиции заказа, выбор местоположения, данные о покупателе. Нажмите кнопку «Оформить заказ».
Наш сервис запоминает данные о пользователе, информацию о заказе и в следующий раз предложит вам повторить к вводу данные предыдущего заказа. Если условия вам не подходят, выбирайте другие варианты.
Если Вы хотите узнать об условиях доставки и оплаты, но не желаете о них читать, то Вы можете позвонить любому нашему сотруднику, и он обязательно Вам поможет.
Покупка за безналичный расчет
При оплате за безналичный расчет наш сотрудник свяжется с Вами, чтобы подтвердить заказ и уточнить сроки и адрес доставки. После оформления заказа сотрудник нашей компании вышлет вам счет, по которому необходимо будет произвести оплату.
После оплаты заказа к Вам приедет наш курьер, который доставит ваш заказ.
Самостоятельно забрать заказ из пунктов самовывоза Вы можете после его оплаты по безналичному расчету. Оплата доставки до пунктов выдачи транспортных компаний производится по тарифам выбранной Вами транспортной компании непосредственно в месте получения заказа.
Самовывоз из офиса нашей компании в Зеленограде, так же возможен после предоплаты по безналичному расчету, и предварительной договоренности с менеджером.
Интернет-магазин выполняет доставку любого товара своей собственной Службой доставки.
Стоимость доставки курьером
Стоимость доставки по Москве, Все товары —750 руб., бесплатная доставка от 25000 руб
Стоимость доставки по Московской области рассчитывается для каждого заказа индивидуально и зависит от суммарного веса товаров заказа и удаленности адреса доставки.
Время доставки
Время доставки согласовывается с менеджером Службы доставки, который обязательно свяжется с вами сразу после того, как вы разместите свой заказ.
Для осуществления доставки в регионы России мы пользуемся услугами компаний СДЭК, ЖелДорЭкспедиция, Автотрейдинг, Деловые Линии. В таком случае, указанными кампаниями взимается стоимость доставки по их внутренним тарифам с заказчика при получении товара.
Самовывоз
Забрать товар самостоятельно и абсолютно бесплатно можно только по адресу: Москва, Зеленоград, Панфиловский проспект, дом 10.
Забрать товар самовывозом можно по любому из адресов самовывоза указанных здесь, стоимость доставки до пункта самовывоза рассчитывается для каждого заказа по тарифам транспортных компаний.















