Калитки Charon – отличное решение для стильного интерьера, благодаря широкому выбору дизайна и опций. Сделанные из стекла и нержавеющей стали, они помогают эффективно управлять потоком посетителей в холлах входных групп или VIP зонах. Калитки Charon – типовое решение для проезда людей на инвалидных колясках, провоза грузов и организации путей эвакуации в соответствии с Нормами Пожарной Безопасности. Калитки Charon совмещают в себе эффективный контроль доступа с прозрачным внешним видом, что сохраняет пространство холла входной группы.
Технические характеристики dormakaba Charon HSD-E03
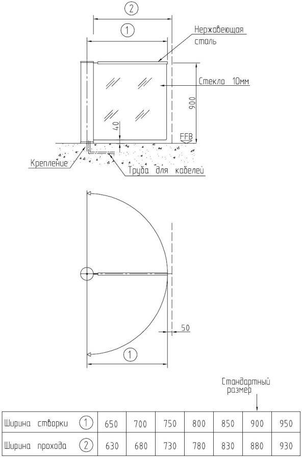
Тип: автоматическая калитка с сервоприводом;
Диаметр колонны: 140 мм;
Ширина створки: 900 мм;
Материал: центральная колонна из нержавеющей стали;
Створка: стекло каленое 10 мм с накладкой из нержавеющей стали.
Дизайн калиток Charon – это эргономичные формы и эффектная комбинация стекла с высококачественной нержавеющей сталью. Прозрачные створки сохраняют ощущение пространства и перспективы – идеальное решение для современного интерьера. Стильные автоматические калитки обеспечивают эффективное управление потоками посетителей и персонала в VIP-зонах аэропортов, холлах офисных зданий, музеев и концертных залов. Все опции калиток могут комбинироваться с системой учета рабочего времени и системой контроля доступа, включая бесконтактные и биометрические считыватели.
Автоматические калитки Charon спроектированы так, чтобы обеспечивать комфортный проход маломобильным гражданам, и соответствуют требованиям российских стандартов для эвакуационных выходов. Стандартная ширина 900 мм открывает удобный проезд для инвалидных кресел и детских колясок, а также позволяет свободно перемещаться через калитку людям с объемным багажом.
В моделях Charon HSD-E01 и Charon HSD-E02 створка с остеклением из однослойного безопасного стекла открывается на 90° в направлении входа и выхода. Механизм блокировки, привод и зубчатый тормоз встроены в колонну. Эти модели калиток подходят для установки вне помещений.
Прозрачная модель Charon HSD-E03 позволяет выбрать один из трех вариантов дизайна цельностеклянной створки: полноразмерный, с усеченным нижним углом или узкий – в половину высоты. У калитки Charon HSD-L01 есть функция механической блокировки в трех положениях. Створка с остеклением из однослойного безопасного стекла открывается на 90° в направлении входа и выхода. Системы управления и блок питания модели Charon HSD-L06 встроены в корпус. Прозрачная створка из поликарбоната открывается на 90° в направлении входа и выхода.
Калитка Charon HSD-L07 механически открывается в одном направлении – противоположное направление заблокировано. Остекление створки выполнено из однослойного безопасного стекла.
Бренд | dormakaba |
Вид калитки | Полуростовая |
Исполнение | Для помещений |
Тип калитки | Автоматическая |
Направление поворота | В обе стороны |
Материал | Нержавеющая сталь |
Напряжение питания | 230 В |
Потребляемая мощность, макс. | 95 Вт |
Габариты | 1040х140х900 мм |
Ширина перекрываемого прохода | 1040 мм |
Ширина прохода | 880 мм |
Материал вставки (створки) | Стекло |
Рабочая температура | от -15°C до +75°C |
Гарантия | 1 год |
Страна производства | Германия |
Функция «Быстрый заказ» позволяет покупателю не проходить всю процедуру оформления заказа самостоятельно. Вы заполняете форму, и через короткое время вам перезвонит менеджер магазина. Он уточнит все условия заказа, ответит на вопросы, касающиеся качества товара, его особенностей. А также подскажет о вариантах оплаты и доставки.
По результатам звонка, пользователь либо, получив уточнения, самостоятельно оформляет заказ, укомплектовав его необходимыми позициями, либо соглашается на оформление в том виде, в котором есть сейчас. Получает подтверждение на почту или на мобильный телефон и ждёт доставки.
Оформление заказа в стандартном режиме
Если вы уверены в выборе, то можете самостоятельно оформить заказ, заполнив по этапам всю форму.
Заполнение адреса
Выберите из списка название вашего региона и населённого пункта. Если вы не нашли свой населённый пункт в списке, выберите значение «Другое местоположение» и впишите название своего населённого пункта в графу «Город». Введите правильный индекс.
Доставка
В зависимости от места жительства вам предложат варианты доставки. Выберите любой удобный способ. Подробнее об условиях доставки читайте в разделе «Доставка».
Оплата
Выберите оптимальный способ оплаты. Подробнее о всех вариантах читайте в разделе «Оплата»
Покупатель
Введите данные о себе: ФИО, адрес доставки, номер телефона. В поле «Комментарии к заказу» введите сведения, которые могут пригодиться курьеру, например: подъезды в доме считаются справа налево.
Оформление заказа
Проверьте правильность ввода информации: позиции заказа, выбор местоположения, данные о покупателе. Нажмите кнопку «Оформить заказ».
Наш сервис запоминает данные о пользователе, информацию о заказе и в следующий раз предложит вам повторить к вводу данные предыдущего заказа. Если условия вам не подходят, выбирайте другие варианты.
Если Вы хотите узнать об условиях доставки и оплаты, но не желаете о них читать, то Вы можете позвонить любому нашему сотруднику, и он обязательно Вам поможет.
Покупка за безналичный расчет
При оплате за безналичный расчет наш сотрудник свяжется с Вами, чтобы подтвердить заказ и уточнить сроки и адрес доставки. После оформления заказа сотрудник нашей компании вышлет вам счет, по которому необходимо будет произвести оплату.
После оплаты заказа к Вам приедет наш курьер, который доставит ваш заказ.
Самостоятельно забрать заказ из пунктов самовывоза Вы можете после его оплаты по безналичному расчету. Оплата доставки до пунктов выдачи транспортных компаний производится по тарифам выбранной Вами транспортной компании непосредственно в месте получения заказа.
Самовывоз из офиса нашей компании в Зеленограде, так же возможен после предоплаты по безналичному расчету, и предварительной договоренности с менеджером.
Интернет-магазин выполняет доставку любого товара своей собственной Службой доставки.
Стоимость доставки курьером
Стоимость доставки по Москве, Все товары —750 руб., бесплатная доставка от 25000 руб
Стоимость доставки по Московской области рассчитывается для каждого заказа индивидуально и зависит от суммарного веса товаров заказа и удаленности адреса доставки.
Время доставки
Время доставки согласовывается с менеджером Службы доставки, который обязательно свяжется с вами сразу после того, как вы разместите свой заказ.
Для осуществления доставки в регионы России мы пользуемся услугами компаний СДЭК, ЖелДорЭкспедиция, Автотрейдинг, Деловые Линии. В таком случае, указанными кампаниями взимается стоимость доставки по их внутренним тарифам с заказчика при получении товара.
Самовывоз
Забрать товар самостоятельно и абсолютно бесплатно можно только по адресу: Москва, Зеленоград, Панфиловский проспект, дом 10.
Забрать товар самовывозом можно по любому из адресов самовывоза указанных здесь, стоимость доставки до пункта самовывоза рассчитывается для каждого заказа по тарифам транспортных компаний.





















