• Корпус и планки из нержавеющей стали AISI 304.
• Оснащена платой управления и светодиодными указателями прохода и направления.
• Сервопозиционный электропривод створки с определением препятствий и автоматической разблокировкой при отключении электроэнергии.
• 2 створки по 900 мм с информационной вставкой.
• Время открытия 2.2 сек.
• Встроенный блок питания.
Турникет-калитка – это одно из наиболее экономичных решений, часто для одностороннего прохода на объект.
Они подходят как для управления доступом в местах со значительными пешеходными потоками, (торговые центры, аэропорты, железнодорожные вокзалы и больницы), так и для объектов, где важен элегантный дизайн и легкость конструкций (отели, оздоровительные центры, тренажерные залы, банки и выставочные центры).
Блоки управления турникетов имеют возможность работать с любым типом систем управления доступом такими как штрихкодовые билеты, магнитные карты, бесконтактные датчики, кнопки и т.д. За исключением отдельных моделей с широким проходом, для всех турникетов установлен режим прохода только одного человека. Турникеты разработаны для двунаправленной работы, но с помощью DIP-переключателей можно установить режим ограниченного или одностороннего свободного прохода.
Корпусы турникетов изготовлены из листовой нержавеющей стали AISI 304. В двухсторонних моделях две отдельные системы проходов объединены в одну структуру. Поскольку турникеты закреплены на широкой поверхности, общая конструкция сбалансирована и прочна. Из-за своих конструктивных особенностей турникеты не подвержены воздействию дождя, воды или подобных внешних условий. Все механические компоненты оцинкованы для защиты от коррозии. Все турникеты имеют сертификат качества продукции "TSEK" и Декларацию соответствия CE.
Функционал
• Совместимость со СКУД работающих по "сухому контакту"
• Управление проходом в двух направлениях
• Система предназначена для двунаправленной работы.
• Двусторонняя система с широким проходом и микропроцессорным управлением.
• Механические части турникетов изготовлены из нержавеющей или оцинкованной стали.
• Главный замок, балансировочные системы и элементы вращающегося оборудования выполнены из литьевого полиамида.
• Сигнализация обеспечивается указателями, расположенными по обе стороны от верхней части турникета (стрелка указывает направление активного прохода, красный крест показывает что проход заблокирован). В дополнение к визуальной сигнализации, во время прохода может подаваться звуковой сигнал.
• Электронная плата управления системой выполнена с защитой от вибрации.
• Микропроцессорная электронная система управления, используемая в турникетах, может быть запрограммирована для различных функций и режимов работы с помощью dip-переключателей.
• Все входы и выходы изолированы оптопарой и релейными компонентами для повышения надежности.
• Турникеты могут быть активированы или заблокированы сигналами, полученными от сторонних систем.
• Двигатели управляются ШИМ системой для тихой и эффективной работы.
• Створка разблокируется и открывается на 90° автоматически в заданном при получении команды на входах A или B.
• Турникет допускает только проходы авторизованных пользователей. Если пользователь не проходит в течение установленного времени после авторизации, система автоматически блокируется и возвращается в режим ожидания (возможна настройка таймаута - 6, 12, 18 секунд, или без ограничения).
• После прохода, система обеспечивает замыкает сухие контакты выходного реле для каждого направления. Можно использовать дополнительный счетчик.
• Электронный блок управления турникетом защищен от воды при наружной установке.
• Турникеты могут работать синхронно с металлоискателями дверного типа; в целях безопасности даже проход человека с разрешением может быть автоматически заблокирован при получении команды от металлоискателя. При этом система может быть возвращена к нормальной работе с пульта оператора.
• При обраружении препятствия во время движения створка останавливается и пытается продолжить свое движение еще раз. Если препятствие все еще присутствует, активируется сигнализация и створка разблокируется. Система самостоятельно перезагружается в течение 8 секунд.
• Время автоматического закрывания может быть установлено вручную или по срабатыванию фотоэлемнтов или контактного коврика для немедленного закрывания после прохода.
• Аварийный режим: при подаче команды на нормально закрытый вход тревоги, проход открывается автоматически в соответствии заданным направлением аварийного выхода (настройка dip-переключателями).При отключении команды (восстановлении контакта) устройство возвращается к нормальной работе.
Характеристики:
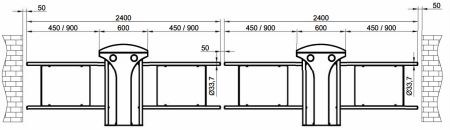
• Мин. ширина проема (мм): 2470
• Время открывания на 90° (с): 1.5
• Интенсивность использования (%): ИНТЕНСИВНОЕ
• Класс защиты (IP): 54
• Напряжение электропитания (В, 50 Гц): 230
• Напряжение электропитания двигателя (В): 24
• Потребляемая мощность (Вт): 65
• Потребляемая мощность в режиме ожидания (Вт): 11
• Диапазон рабочих температур (°C): -20 ÷ +68
Бренд | Came |
Вид товара | Турникет-калитка |
Вид калитки | Полуростовая |
Исполнение | Для помещений |
Тип калитки | Автоматическая |
Направление поворота | В обе стороны |
Антипаника | Механическая |
Пульт управления | Приобретается отдельно |
Материал | Нержавеющая сталь |
Интеграция со СКУД | Любые типы СКУД |
Напряжение питания | 230 В |
Источник питания | Встроенный |
Потребляемая мощность, макс. | 65 Вт |
Габариты | 2400х450х1000 мм |
Ширина перекрываемого прохода | 2400 мм |
Ширина прохода | 900 мм |
Материал вставки (створки) | Металл |
Рабочая температура | от -20°C до +65°C |
Класс защиты (IP) | IP54 |
Гарантия | 3 года |
Страна производства | Италия |
Функция «Быстрый заказ» позволяет покупателю не проходить всю процедуру оформления заказа самостоятельно. Вы заполняете форму, и через короткое время вам перезвонит менеджер магазина. Он уточнит все условия заказа, ответит на вопросы, касающиеся качества товара, его особенностей. А также подскажет о вариантах оплаты и доставки.
По результатам звонка, пользователь либо, получив уточнения, самостоятельно оформляет заказ, укомплектовав его необходимыми позициями, либо соглашается на оформление в том виде, в котором есть сейчас. Получает подтверждение на почту или на мобильный телефон и ждёт доставки.
Оформление заказа в стандартном режиме
Если вы уверены в выборе, то можете самостоятельно оформить заказ, заполнив по этапам всю форму.
Заполнение адреса
Выберите из списка название вашего региона и населённого пункта. Если вы не нашли свой населённый пункт в списке, выберите значение «Другое местоположение» и впишите название своего населённого пункта в графу «Город». Введите правильный индекс.
Доставка
В зависимости от места жительства вам предложат варианты доставки. Выберите любой удобный способ. Подробнее об условиях доставки читайте в разделе «Доставка».
Оплата
Выберите оптимальный способ оплаты. Подробнее о всех вариантах читайте в разделе «Оплата»
Покупатель
Введите данные о себе: ФИО, адрес доставки, номер телефона. В поле «Комментарии к заказу» введите сведения, которые могут пригодиться курьеру, например: подъезды в доме считаются справа налево.
Оформление заказа
Проверьте правильность ввода информации: позиции заказа, выбор местоположения, данные о покупателе. Нажмите кнопку «Оформить заказ».
Наш сервис запоминает данные о пользователе, информацию о заказе и в следующий раз предложит вам повторить к вводу данные предыдущего заказа. Если условия вам не подходят, выбирайте другие варианты.
Если Вы хотите узнать об условиях доставки и оплаты, но не желаете о них читать, то Вы можете позвонить любому нашему сотруднику, и он обязательно Вам поможет.
Покупка за безналичный расчет
При оплате за безналичный расчет наш сотрудник свяжется с Вами, чтобы подтвердить заказ и уточнить сроки и адрес доставки. После оформления заказа сотрудник нашей компании вышлет вам счет, по которому необходимо будет произвести оплату.
После оплаты заказа к Вам приедет наш курьер, который доставит ваш заказ.
Самостоятельно забрать заказ из пунктов самовывоза Вы можете после его оплаты по безналичному расчету. Оплата доставки до пунктов выдачи транспортных компаний производится по тарифам выбранной Вами транспортной компании непосредственно в месте получения заказа.
Самовывоз из офиса нашей компании в Зеленограде, так же возможен после предоплаты по безналичному расчету, и предварительной договоренности с менеджером.
Интернет-магазин выполняет доставку любого товара своей собственной Службой доставки.
Стоимость доставки курьером
Стоимость доставки по Москве, Все товары —750 руб., бесплатная доставка от 25000 руб
Стоимость доставки по Московской области рассчитывается для каждого заказа индивидуально и зависит от суммарного веса товаров заказа и удаленности адреса доставки.
Время доставки
Время доставки согласовывается с менеджером Службы доставки, который обязательно свяжется с вами сразу после того, как вы разместите свой заказ.
Для осуществления доставки в регионы России мы пользуемся услугами компаний СДЭК, ЖелДорЭкспедиция, Автотрейдинг, Деловые Линии. В таком случае, указанными кампаниями взимается стоимость доставки по их внутренним тарифам с заказчика при получении товара.
Самовывоз
Забрать товар самостоятельно и абсолютно бесплатно можно только по адресу: Москва, Зеленоград, Панфиловский проспект, дом 10.
Забрать товар самовывозом можно по любому из адресов самовывоза указанных здесь, стоимость доставки до пункта самовывоза рассчитывается для каждого заказа по тарифам транспортных компаний.









