RG-Lock 595 – это врезной электромеханический моторный замок, разработанный RusGuard. Устройство является доработанным аналогом замка EL595 от финского производителя Abloy, получившим новый функционал.
Моторный замок RG-Lock 595 может использоваться как запорное устройство в составе полноценной точки доступа (вход и выход по карте), при этом он имеет функцию «Антипаника».
Устанавливается на внутренние и наружные сплошные двери, а также на аварийные и эвакуационные выходы с высокой степенью проходимости. Подходит для противопожарных дверей.
Главное преимущество замка RG-Lock 595 – наличие режима управляемой «Антипаники». Это значит, что в нормальном режиме дверь, оборудованная контроллером СКУД и замком, работает как стандартная точка доступа: вход и выход доступен по пропуску. Также доступен вход по механическому ключу, если в замок установлен цилиндр.
При возникновении внештатной ситуации замок автоматически переходит в режим «Антипаника»: разблокируется возможность неавторизованного выхода по нажатию ручки.
Что будет считаться внештатной ситуацией?
Срабатывание пожарной сигнализации. Сигнал тревоги передается на контроллер, который дает команду на аварийное открытие двери;
Физическое повреждение линии питания замка (с учетом заданной конфигурации замка);
Нажатие на кнопку аварийного выхода. Такая кнопка эмулирует обрыв питания, что приводит к разблокировке дверей.
Резервное питание
Моторный замок RG-Lock 595 имеет встроенное резервное питание, основанное на ионисторах, которые способны накапливать и отдавать электроэнергию. В случае, если замок теряет основное питание, накопленной в ионисторах энергии достаточно для активации выхода по ручке.
Ионисторы не являются расходным материалом и не требуют замены или обслуживания. Их ресурс составляет несколько тысяч циклов заряда и разрядки, что вполне достаточно на весь срок службы устройства. Но даже если ионисторы по какой-то причине выйдут из строя и не смогут накапливать энергию, то в этом случае замок подаст соответствующий сигнал в программное обеспечение RusGuard Soft.
Дополнительные возможности замка RG-Lock 595:
• Интерфейс RS-485. При помощи подключения по RS-485 возможна самостоятельная смена прошивок замка, которые доступны на сайте RusGuard. • Прошивка определяет нормальное состояние замка: открытый или закрытый.
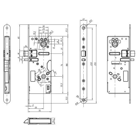
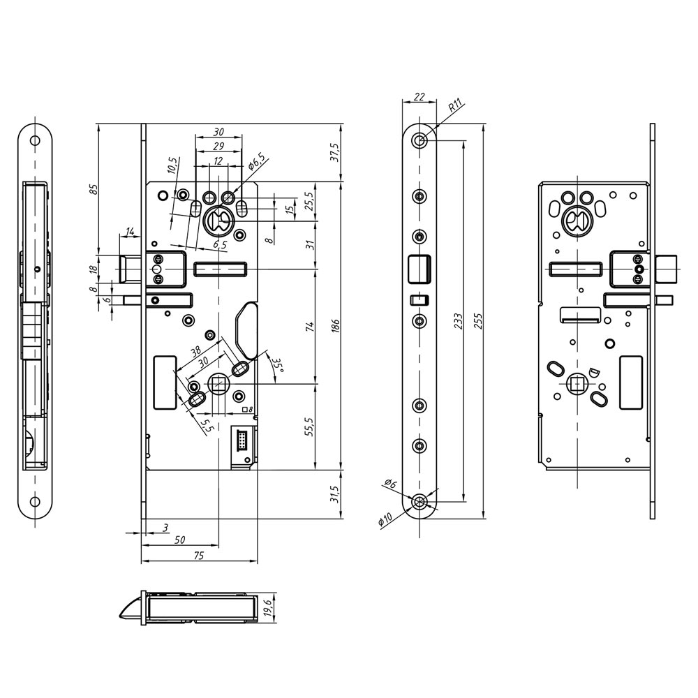
Настраиваемый ригель. Доступно изменение сторонности ригеля (открытие двери на правую или на левую сторону), а также регулировка вылета ригеля (14 или 20 мм).
• Совместимость с фурнитурой Abloy. Замок имеет размеры и технологические отверстия, точно соответствующие замку EL595FU, поэтому к нему подходят цилиндровые механизмы, ручки, нажимные штанги и ответные планки от финского производителя.
Характеристики:
• Тип замка (состояние ручки при отсутствии питания): НЗ/НО
• Рабочее напряжение: 12В DC (-10%, +15%)
• Потребление тока:
- при подаче питания (не более 2 сек): 1200 мА
- рабочий цикл: 500 мА
- дежурный режим: 50 мА
• Время готовности после подачи питания: 2 сек
• Настраиваемый вылет ригеля: 14/20mm
• Настраиваемые функции: положение ригеля при открывании
• Выходы (открытый коллектор):
- ригель выдвинут;
- ручка нажата.
• Смена сторонности: без разбора корпуса замка Да
• Масса замка нетто/брутто (не более): 1,0 кг./1,2 кг.
• Установочные размеры: 186х72х19,6 мм.
• Габаритные размеры: 255х89х19,6 мм.
• Диапазон рабочих температур: от -25°С до +60°С
• Содержание драгоценных материалов: не требует учёта при хранении, списании и утилизации
Замок нуждается в обязательном техническом обслуживании минимум 1 раз в год. В профилактических целях рекомендуется ежегодно проводить следующие мероприятия:
- визуальный контроль целостности корпуса замка;
- при необходимости – чистку корпуса замка и контактных соединений от грязи и пыли;
- нанесение на ригель замка специальной синтетической смазки Vaselin Isoflex Topas NB52, или аналогичной.
Своевременное нанесение смазки уменьшит трение и замедлит износ механизмов.
Бренд | RusGuard |
Исполнение | Уличное (под навесом) |
Тип замка | Электромеханический замок |
Вид замка | Врезной |
Назначение замка | На любой тип дверей, Для подъездных дверей, На дверь в квартиру, Стандартные двери, Для пожарных систем |
Длина замка, мм | 72 |
Высота замка, мм | 186 |
Ширина замка, мм | 19.6 |
Напряжение питания | 12 В |
Потребляемый ток, макс. | 1200 мА |
Вес, кг | 1 |
Рабочая температура | от -25°C до +60°C |
Сертификаты | Транспортной безопасности |
Гарантия | 1 год |
Страна производства | Россия |
Функция «Быстрый заказ» позволяет покупателю не проходить всю процедуру оформления заказа самостоятельно. Вы заполняете форму, и через короткое время вам перезвонит менеджер магазина. Он уточнит все условия заказа, ответит на вопросы, касающиеся качества товара, его особенностей. А также подскажет о вариантах оплаты и доставки.
По результатам звонка, пользователь либо, получив уточнения, самостоятельно оформляет заказ, укомплектовав его необходимыми позициями, либо соглашается на оформление в том виде, в котором есть сейчас. Получает подтверждение на почту или на мобильный телефон и ждёт доставки.
Оформление заказа в стандартном режиме
Если вы уверены в выборе, то можете самостоятельно оформить заказ, заполнив по этапам всю форму.
Заполнение адреса
Выберите из списка название вашего региона и населённого пункта. Если вы не нашли свой населённый пункт в списке, выберите значение «Другое местоположение» и впишите название своего населённого пункта в графу «Город». Введите правильный индекс.
Доставка
В зависимости от места жительства вам предложат варианты доставки. Выберите любой удобный способ. Подробнее об условиях доставки читайте в разделе «Доставка».
Оплата
Выберите оптимальный способ оплаты. Подробнее о всех вариантах читайте в разделе «Оплата»
Покупатель
Введите данные о себе: ФИО, адрес доставки, номер телефона. В поле «Комментарии к заказу» введите сведения, которые могут пригодиться курьеру, например: подъезды в доме считаются справа налево.
Оформление заказа
Проверьте правильность ввода информации: позиции заказа, выбор местоположения, данные о покупателе. Нажмите кнопку «Оформить заказ».
Наш сервис запоминает данные о пользователе, информацию о заказе и в следующий раз предложит вам повторить к вводу данные предыдущего заказа. Если условия вам не подходят, выбирайте другие варианты.
Если Вы хотите узнать об условиях доставки и оплаты, но не желаете о них читать, то Вы можете позвонить любому нашему сотруднику, и он обязательно Вам поможет.
Покупка за безналичный расчет
При оплате за безналичный расчет наш сотрудник свяжется с Вами, чтобы подтвердить заказ и уточнить сроки и адрес доставки. После оформления заказа сотрудник нашей компании вышлет вам счет, по которому необходимо будет произвести оплату.
После оплаты заказа к Вам приедет наш курьер, который доставит ваш заказ.
Самостоятельно забрать заказ из пунктов самовывоза Вы можете после его оплаты по безналичному расчету. Оплата доставки до пунктов выдачи транспортных компаний производится по тарифам выбранной Вами транспортной компании непосредственно в месте получения заказа.
Самовывоз из офиса нашей компании в Зеленограде, так же возможен после предоплаты по безналичному расчету, и предварительной договоренности с менеджером.
Интернет-магазин выполняет доставку любого товара своей собственной Службой доставки.
Стоимость доставки курьером
Стоимость доставки по Москве, Все товары —750 руб., бесплатная доставка от 25000 руб
Стоимость доставки по Московской области рассчитывается для каждого заказа индивидуально и зависит от суммарного веса товаров заказа и удаленности адреса доставки.
Время доставки
Время доставки согласовывается с менеджером Службы доставки, который обязательно свяжется с вами сразу после того, как вы разместите свой заказ.
Для осуществления доставки в регионы России мы пользуемся услугами компаний СДЭК, ЖелДорЭкспедиция, Автотрейдинг, Деловые Линии. В таком случае, указанными кампаниями взимается стоимость доставки по их внутренним тарифам с заказчика при получении товара.
Самовывоз
Забрать товар самостоятельно и абсолютно бесплатно можно только по адресу: Москва, Зеленоград, Панфиловский проспект, дом 10.
Забрать товар самовывозом можно по любому из адресов самовывоза указанных здесь, стоимость доставки до пункта самовывоза рассчитывается для каждого заказа по тарифам транспортных компаний.









