Пешеходный портальный радиационный монитор КРП-02РКБ предназначен для обнаружения ядерных материалов, радиоактивных веществ и контроля бета-активного загрязнения персонала. Эта модификация отличается от базовой версии наличием отдельного канала регистрации бета-излучения, обеспечиваемого счетчиками Гейгера–Мюллера, установленными в вертикальных панелях и нижней секции портала. Комплекс формирует световую и звуковую сигнализацию при превышении установленных порогов, обеспечивая надежный контроль сотрудников при входе и выходе с охраняемых территорий.
Система автоматически измеряет уровень фона, вычисляет порог срабатывания, анализирует текущий уровень излучения и определяет факт наличия радиоактивных материалов в контролируемом пространстве. Монитор поддерживает несколько режимов контроля, включая режим обнаружения и режима ожидания прохождения, что позволяет эффективно использовать его в проходных зон, санитарных шлюзах и на объектах использования атомной энергии. Наличие самодиагностики, датчиков присутствия и отображения зоны загрязнения делает эксплуатацию надежной и удобной.
КРП-02РКБ внесён в Государственный реестр средств измерений и соответствует требованиям ГОСТ и ТУ. Монитор выпускается в разборном виде, оснащается увеличенным набором детекторов и специализированными бета-каналами. Благодаря высокой чувствительности к гамма-излучению и расширенным возможностям регистрации бета-излучения, модель КРП-02РКБ применяется в условиях, где требуется не только контроль проноса радиоактивных материалов, но и оценка загрязнения одежды и кожных покровов сотрудников.
Особенности
- Регистрация гамма-излучения в диапазоне 0,05–2,0 МэВ.
- Дополнительный канал регистрации бета-излучения (Sr-90 + Y-90).
- Чувствительность бета-каналов: боковые стойки — ≥0,260 имп/с; нижняя панель — ≥0,100 имп/с.
- Автоматическое измерение фона и вычисление порога.
- Самодиагностика при включении и в процессе работы.
- Отображение зоны радиоактивного загрязнения.
- Подсчёт числа лиц, прошедших через контролируемое пространство.
Преимущества
- Обнаружение делящихся материалов и радиоактивных веществ по гамма-излучению.
- Контроль бета-загрязнений персонала в широком диапазоне активности.
- Высокая вероятность обнаружения — не менее 0,95.
- Низкая вероятность ложных тревог — 10⁻⁴.
- Круглосуточный режим работы.
- Возможность подключения к центральной системе контроля.
Недостатки
- Рабочий температурный диапазон — только положительные температуры.
- Повышенная масса по сравнению с КРП-02РК и КРП-02РК1.
- Не предназначен для контроля транспорта.
Комплектация
- Монитор КРП-02РКБ (стойки, основание, блок управления).
- Блок управления АВМУ.418251.001-01 — 1 шт.
- Стойка АВМУ.301421.000-02 — 2 шт.
- Основание АВМУ.733100.000-01 — 1 шт.
- Сцинтиблоки СБН 80×80 — 6 шт.
- Счетчики бета-частиц СБТ-10А.
- Кабель сетевой — 1 шт.
- Крепёжные изделия — комплект.
- Выносной пульт — по требованию заказчика.
- Руководство по эксплуатации АВМУ.412131.003РЭ — 1 шт.
- Паспорт АВМУ.412131.003П — 1 шт.
- Программное обеспечение — комплект.
Технические характеристики:
Общие характеристики- Детектируемая физическая величина: радиоактивность урана-235 с обогащением не ниже 3,6%;
- Энергия регистрируемого гамма-излучения: от 0,05 до 2,0 МэВ;
- Чувствительность к гамма-излучению U-235: 1,40·10⁻³ имп·с⁻¹·Бк⁻¹;
- Чувствительность к гамма-излучению Cs-137: 5,40·10⁻³ имп·с⁻¹·Бк⁻¹;
- Минимально-обнаруживаемая активность / масса U-235: режим 3 — 190 кБк (2,4 г);
- Чувствительность бета-канала (Sr-90 + Y-90): боковые стойки ≥0,260 имп/с; нижняя панель ≥0,100 имп/с;
- Диапазон контроля бета-загрязнений: 40–6000 частиц/мин·см²;
- Вероятность правильного обнаружения, не менее: 0,95;
- Вероятность ложных тревог: 10⁻⁴;
- Время измерения: 1,25 с;
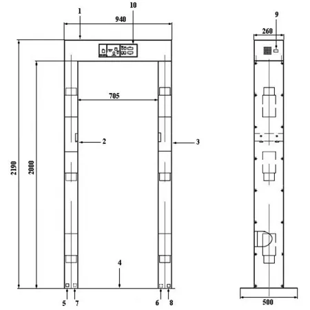
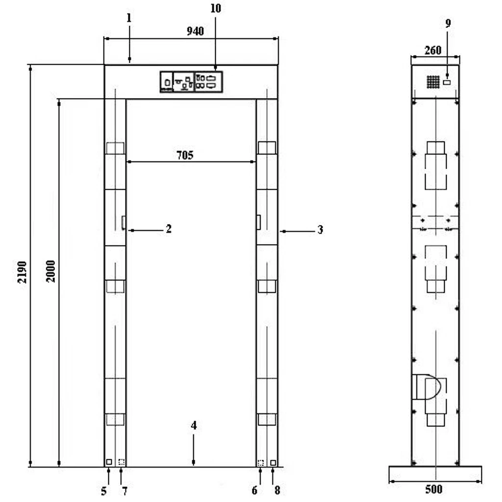
- Контролируемое пространство (В × Ш): 2000 × 710 мм;
- Время установления рабочего режима: не более 1 мин;
- Нестабильность показаний за 24 часа: не более ±6%;
- Изменение чувствительности при изменении температуры: не более ±5%;
- Изменение чувствительности при изменении напряжения: не более ±5%;
- Режим работы: круглосуточно;
- Электропитание: 220 В (от −15% до +10%), 50 Гц (±2%);
- Потребляемая мощность: не более 50 ВА;
- Температура эксплуатации: от +10°C до +35°C;
- Относительная влажность: до 75% при 30°C;
- Атмосферное давление: 84–106,7 кПа;
- Габариты монитора (В × Ш × Г): 2190 × 940 × 260 мм;
- Габариты выносного пульта (В × Ш × Г): 90 × 200 × 110 мм;
- Масса монитора: 105 кг;
- Масса выносного пульта: 0,2 кг;
- Средняя наработка до отказа: не менее 4000 ч;
- Средний срок службы до капитального ремонта: не менее 6 лет;
- Страна происхождения: Российская Федерация
- ГОСТ 4.59–79 «Средства измерений ионизирующих излучений. Номенклатура показателей»
- ГОСТ 27451–87 «Средства измерений ионизирующих излучений. Общие технические условия»
- ГОСТ Р 51635–2000 «Мониторы радиационные ядерных материалов»
- ГОСТ 8.033–96 «Государственная поверочная схема для средств измерения активности радионуклидов, потока и плотности потока альфа-, бета-частиц и фотонов радионуклидных источников»
- ГОСТ Р 51522–99 «Совместимость технических средств электромагнитная. Электрическое оборудование для измерения, управления и лабораторного применения. Требования и методы испытаний»
- ГОСТ Р 52319–2005 «Безопасность электрического оборудования для измерения, управления и лабораторного применения. Часть 1. Общие требования»
- Технические условия ТУ 4362-001-11133454-2010 (АВМУ.412131.003.ТУ)
Бренд | РАТЭК |
Напряжение питания | 220 В |
Габариты | 940х260х2190 мм |
Вес, кг | 105 |
Рабочая температура | от +10°C до +35°C |
Рабочая влажность | не выше 75% |
Сертификаты | ГОСТ Р 51635-2000 Мониторы радиационные ядерных материалов, Реестр российской продукции |
Гарантия | 2 года |
Страна производства | Россия |
Функция «Быстрый заказ» позволяет покупателю не проходить всю процедуру оформления заказа самостоятельно. Вы заполняете форму, и через короткое время вам перезвонит менеджер магазина. Он уточнит все условия заказа, ответит на вопросы, касающиеся качества товара, его особенностей. А также подскажет о вариантах оплаты и доставки.
По результатам звонка, пользователь либо, получив уточнения, самостоятельно оформляет заказ, укомплектовав его необходимыми позициями, либо соглашается на оформление в том виде, в котором есть сейчас. Получает подтверждение на почту или на мобильный телефон и ждёт доставки.
Оформление заказа в стандартном режиме
Если вы уверены в выборе, то можете самостоятельно оформить заказ, заполнив по этапам всю форму.
Заполнение адреса
Выберите из списка название вашего региона и населённого пункта. Если вы не нашли свой населённый пункт в списке, выберите значение «Другое местоположение» и впишите название своего населённого пункта в графу «Город». Введите правильный индекс.
Доставка
В зависимости от места жительства вам предложат варианты доставки. Выберите любой удобный способ. Подробнее об условиях доставки читайте в разделе «Доставка».
Оплата
Выберите оптимальный способ оплаты. Подробнее о всех вариантах читайте в разделе «Оплата»
Покупатель
Введите данные о себе: ФИО, адрес доставки, номер телефона. В поле «Комментарии к заказу» введите сведения, которые могут пригодиться курьеру, например: подъезды в доме считаются справа налево.
Оформление заказа
Проверьте правильность ввода информации: позиции заказа, выбор местоположения, данные о покупателе. Нажмите кнопку «Оформить заказ».
Наш сервис запоминает данные о пользователе, информацию о заказе и в следующий раз предложит вам повторить к вводу данные предыдущего заказа. Если условия вам не подходят, выбирайте другие варианты.
Если Вы хотите узнать об условиях доставки и оплаты, но не желаете о них читать, то Вы можете позвонить любому нашему сотруднику, и он обязательно Вам поможет.
Покупка за безналичный расчет
При оплате за безналичный расчет наш сотрудник свяжется с Вами, чтобы подтвердить заказ и уточнить сроки и адрес доставки. После оформления заказа сотрудник нашей компании вышлет вам счет, по которому необходимо будет произвести оплату.
После оплаты заказа к Вам приедет наш курьер, который доставит ваш заказ.
Самостоятельно забрать заказ из пунктов самовывоза Вы можете после его оплаты по безналичному расчету. Оплата доставки до пунктов выдачи транспортных компаний производится по тарифам выбранной Вами транспортной компании непосредственно в месте получения заказа.
Самовывоз из офиса нашей компании в Зеленограде, так же возможен после предоплаты по безналичному расчету, и предварительной договоренности с менеджером.
Интернет-магазин выполняет доставку любого товара своей собственной Службой доставки.
Стоимость доставки курьером
Стоимость доставки по Москве, Все товары —750 руб., бесплатная доставка от 25000 руб
Стоимость доставки по Московской области рассчитывается для каждого заказа индивидуально и зависит от суммарного веса товаров заказа и удаленности адреса доставки.
Время доставки
Время доставки согласовывается с менеджером Службы доставки, который обязательно свяжется с вами сразу после того, как вы разместите свой заказ.
Для осуществления доставки в регионы России мы пользуемся услугами компаний СДЭК, ЖелДорЭкспедиция, Автотрейдинг, Деловые Линии. В таком случае, указанными кампаниями взимается стоимость доставки по их внутренним тарифам с заказчика при получении товара.
Самовывоз
Забрать товар самостоятельно и абсолютно бесплатно можно только по адресу: Москва, Зеленоград, Панфиловский проспект, дом 10.
Забрать товар самовывозом можно по любому из адресов самовывоза указанных здесь, стоимость доставки до пункта самовывоза рассчитывается для каждого заказа по тарифам транспортных компаний.







