Полноростовый турникет с расширенным проходом и автоматическими створками используется для контроля доступа посетителей (в том числе групп, людей в инвалидных колясках, людей с велосипедами и колясками) на объект. Распашная конструкция обеспечивает эффективную ширину 1200 и высоту 2100 мм. Распашные створки управляют проходом в обе стороны, исключают обход калиток перепрыгиванием и подлезанием под штанги. Предусмотрен монтаж отдельно стоящим блоком либо в составе заграждения из нескольких терминалов.
Управление турникетом осуществляется при помощи подключения к СКУД, встроенными считывателями, либо пультом ДУ. Модель полноростового однопроходного турникета с расширенным проходом СПЕКТР обладает высокой проходной способностью (20-35 чел/мин), блокировкой обратного хода (запрещено обратное вращение створок при повороте ротора), автоматической функцией разблокировки ротора при аварийных ситуациях или сбое электропитания, пониженным энергопотреблением. А технические возможности устройства обеспечивают корректную интеграцию в системы СКУД любых производителей..
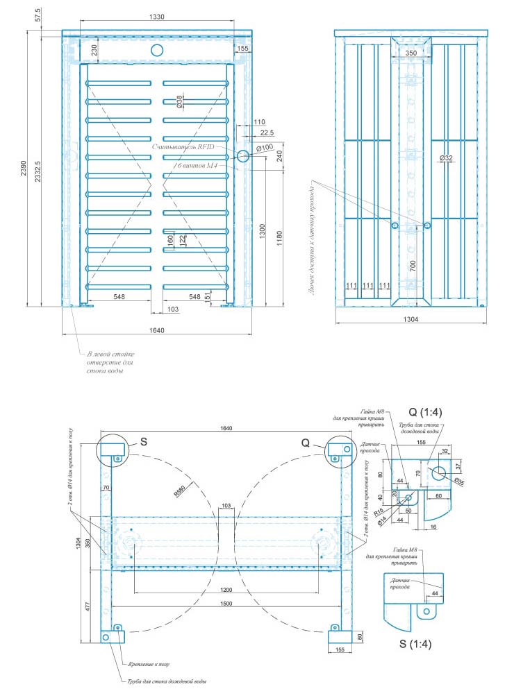
Полноростовой однопроходной турникет с расширенным проходом СПЕКТР изготовлен из нержавеющей стали AISI 304, обладает антивандальной защитой и коррозионной стойкостью. Турникет можно использовать внутри помещения либо снаружи (под навесом).
При обустройстве входной зоны, полноростовые турникеты рекомендуется располагать параллельно друг другу в одну линию, как на расстоянии друг от друга, так и вплотную.
Преимущества турникета
В организациях и на территориях, где требуется быстрый пропуск людей с детскими колясками или велосипедами, маломобильных категорий граждан, грузчиков с крупногабаритными тележками, оптимальное решение входной группы КПП — установка двухкалиточного распашного полноростового турникета с автоматическим дистанционным управлением.
• Широкий проход — распашные калитки без центральной стойки обеспечивают перемещение через проходную объектов шириной до 1,2 метра.
• Надежная конструкция из нержавеющей стали с толщиной стенки не менее 1,5 мм — прочная сварная рама, штанги створок с шагом 160 мм.
• Уличный и внутренний монтаж — турникет снабжен крышей с водостоком. Элементы терминала защищены от влаги и пыли по IP 54.
• Автоматическое управление — моторизованные створки с регулировкой скорости открытия/закрытия, датчиками положения и сенсорами безопасности для исключения травмирования посетителей. Интеграция в СКУД. Световая индикация направления/запрета прохода. Считыватели карт в комплекте. Предусмотрено ручное разблокирование на случай отключения электропитания.

Комплексное решение с полноростовым турникетом
Для обеспечения наибольшей безопасности на проходной, рекомендуем использовать комплекс из нескольких полноростовых турникетов СПЕКТР, металлодетекторов, рентгенотелевизионных установок под навесом. Металлодетектор обеспечивает контроль проноса металлических предметов проходящих через него людей. Стационарная рентгеновская установка предназначена для досмотра личных вещей и обследования отдельных предметов (посылок, бандеролей, ручной клади и т.п.) с целью обнаружения в них незаконных вложений, таких как: взрывные устройства, холодное и огнестрельное оружие и другие запрещённые к провозу предметы.
Компоновка турникетов и модулей
Устройства из новой серии турникетов СПЕКТР от БЛОКПОСТ соединяются в единую сеть. Оснащены универсальными люками для быстрого, беспрерывного монтажа, что исключает необходимость в установке дополнительных ограждений при монтаже сразу нескольких турникетов.

Система соединения турникетов и модулей
Для соединения турникетов и модулей серии СПЕКТР необходимо:
• Снять защитные крышки с наружной стороны
• Снять защитные люки с внутренней стороны
• Сдвинуть турникеты вплотную друг к другу
• Зафиксировать турникеты между собой с помощью болтов через раму каркаса
• Закрыть защитные люки с внутренних сторон
Такая система крепления надежно соединяет между собой любой турникет или модуль серии СПЕКТР, сокращает время на монтаж и придает единый вид.
Эксплуатация турникета вне помещений
При использовании полноростового турникета СПЕКТР на открытом воздухе необходимо использовать защитный навес. Такие меры предосторожности предохраняют турникет от прямого воздействия влаги и различных атмосферных осадков, обеспечивая долгосрочную стабильную работу устройства. Эксплуатация крыши допускается при температуре окружающего воздуха от -40°С до +55°С и влажности воздуха до 90%.

Интеграция в систему контроля доступа
Работу полноростового турникета СПЕКТР можно систематизировать с помощью "сухих контактов", которые позволяют подключить турникет к ПК, а также к металлодетекторам, интроскопам, тепловизорам. Если детектор зафиксировал факт наличия у человека запрещенного к проносу предмета, то устройство пропускной системы заблокирует проход. Полноростовой однопроходной турникет СПЕКТР можно снабдить устройствами распознавания пользователя: считывателем штрих-кода, картоприёмником, сканером отпечатка ладони/пальца или идентификатором лица.

Характеристики:
• Место установки: Внутри помещения или снаружи (под навесом)
• Ширина прохода: 1200 мм
• Режим "антипаника": автоматический/ручной
• Контроль прохода по одному: есть
• Режимы: автоматический / ручной
• Угол поворота штанги: 180°
• Пропускная способность (чел/мин): 40
• Время открытия (сек): 0.2
• Направление вращения: Однонаправленное/двунаправленное (управляемое)
• Средняя наработка на отказ: ≥ 5 000 000 проходов
• Когда питание отсутствует, ротор остаётся заблокирован
• Интерфейс управления: Сухой контакт
• Интерфейс связи: RS-282/485
• Комплект считывателей: MIFARE
• Возможность установки доп. биометрических устройств: есть
• Материал корпуса: нержавеющая сталь AISI 304
• Материал створок: нержавеющая сталь 304, толщина 1,2/1,5 мм
• Толщина корпуса (мм): 1,5
• Напряжение питания: 220 В, 50 Гц
• Источник электропитания (В): 220
• Потребляемая мощность: 35 Вт
• Рабочее напряжение (В): 24
• Диапазон рабочих температур: от -15 до +55°С
• Влажность: 5% ~ 90%
• Степень защищенности (IP): 54
• Внешние габариты ДхШхВ (мм): 1640х1304х2386
• Габариты прохода ШхВ (мм): 1200х2100
• Габариты упаковки ДхШхВ (мм): 1360х520х2475
• Вес нетто (кг): 257
• Вес брутто (кг): 312
• В комплекте: 10 м силовой кабель с евро розеткой
Бренд турникета | Блокпост |
Вид турникета | Турникет |
Тип турникета | Полноростовой |
Тип корпуса турникета | Однопроходной |
Тип привода турникета | Электромоторный |
Исполнение турникета | Уличное (под навесом) |
Материал корпуса турникета | Нержавеющая сталь |
Преграждающие планки/створки | Антипаника, в комплекте |
Антипаника | Автоматическая |
Тип блокировки | Нормально закрытый (НЗ) |
Интерфейс связи с контроллером | RS-485 |
Встроенный картоприемник | Нет |
Встроенные считыватели | Бесконтактные |
Пропускная способность | 40 чел/мин |
Напряжение питания | 220 В |
Источник питания | Встроенный |
Потребляемая мощность, макс. | 35 Вт |
Габариты | 1640х1304х2390 мм |
Ширина перекрываемого прохода | 1640 мм |
Ширина прохода | 1200 мм |
Высота прохода | 2100 мм |
Вес, кг | 260 |
Рабочая температура | от -15 °C до +50°C |
Рабочая влажность | 5% - 90% без конденсации |
Класс защиты (IP) | IP54 |
Цвет | Металл |
Наработка на отказ, не менее | 5 млн. циклов |
Стыковка со СКУД | Любые типы СКУД |
Гарантия | 1 год |
Страна производства | Россия |
Функция «Быстрый заказ» позволяет покупателю не проходить всю процедуру оформления заказа самостоятельно. Вы заполняете форму, и через короткое время вам перезвонит менеджер магазина. Он уточнит все условия заказа, ответит на вопросы, касающиеся качества товара, его особенностей. А также подскажет о вариантах оплаты и доставки.
По результатам звонка, пользователь либо, получив уточнения, самостоятельно оформляет заказ, укомплектовав его необходимыми позициями, либо соглашается на оформление в том виде, в котором есть сейчас. Получает подтверждение на почту или на мобильный телефон и ждёт доставки.
Оформление заказа в стандартном режиме
Если вы уверены в выборе, то можете самостоятельно оформить заказ, заполнив по этапам всю форму.
Заполнение адреса
Выберите из списка название вашего региона и населённого пункта. Если вы не нашли свой населённый пункт в списке, выберите значение «Другое местоположение» и впишите название своего населённого пункта в графу «Город». Введите правильный индекс.
Доставка
В зависимости от места жительства вам предложат варианты доставки. Выберите любой удобный способ. Подробнее об условиях доставки читайте в разделе «Доставка».
Оплата
Выберите оптимальный способ оплаты. Подробнее о всех вариантах читайте в разделе «Оплата»
Покупатель
Введите данные о себе: ФИО, адрес доставки, номер телефона. В поле «Комментарии к заказу» введите сведения, которые могут пригодиться курьеру, например: подъезды в доме считаются справа налево.
Оформление заказа
Проверьте правильность ввода информации: позиции заказа, выбор местоположения, данные о покупателе. Нажмите кнопку «Оформить заказ».
Наш сервис запоминает данные о пользователе, информацию о заказе и в следующий раз предложит вам повторить к вводу данные предыдущего заказа. Если условия вам не подходят, выбирайте другие варианты.
Если Вы хотите узнать об условиях доставки и оплаты, но не желаете о них читать, то Вы можете позвонить любому нашему сотруднику, и он обязательно Вам поможет.
Покупка за безналичный расчет
При оплате за безналичный расчет наш сотрудник свяжется с Вами, чтобы подтвердить заказ и уточнить сроки и адрес доставки. После оформления заказа сотрудник нашей компании вышлет вам счет, по которому необходимо будет произвести оплату.
После оплаты заказа к Вам приедет наш курьер, который доставит ваш заказ.
Самостоятельно забрать заказ из пунктов самовывоза Вы можете после его оплаты по безналичному расчету. Оплата доставки до пунктов выдачи транспортных компаний производится по тарифам выбранной Вами транспортной компании непосредственно в месте получения заказа.
Самовывоз из офиса нашей компании в Зеленограде, так же возможен после предоплаты по безналичному расчету, и предварительной договоренности с менеджером.
Интернет-магазин выполняет доставку любого товара своей собственной Службой доставки.
Стоимость доставки курьером
Стоимость доставки по Москве, Все товары —750 руб., бесплатная доставка от 25000 руб
Стоимость доставки по Московской области рассчитывается для каждого заказа индивидуально и зависит от суммарного веса товаров заказа и удаленности адреса доставки.
Время доставки
Время доставки согласовывается с менеджером Службы доставки, который обязательно свяжется с вами сразу после того, как вы разместите свой заказ.
Для осуществления доставки в регионы России мы пользуемся услугами компаний СДЭК, ЖелДорЭкспедиция, Автотрейдинг, Деловые Линии. В таком случае, указанными кампаниями взимается стоимость доставки по их внутренним тарифам с заказчика при получении товара.
Самовывоз
Забрать товар самостоятельно и абсолютно бесплатно можно только по адресу: Москва, Зеленоград, Панфиловский проспект, дом 10.
Забрать товар самовывозом можно по любому из адресов самовывоза указанных здесь, стоимость доставки до пункта самовывоза рассчитывается для каждого заказа по тарифам транспортных компаний.



















